5 Bedroom House

Greenwood Avenue, Lilliput
£1,495,000

5 Bedrooms
3 Bathrooms
3 Receptions
Garden

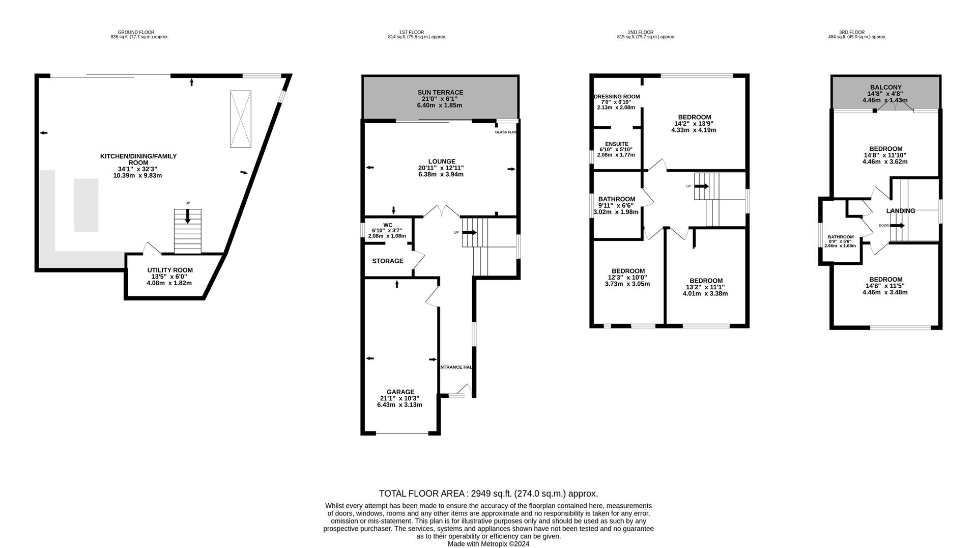
A recently constructed, five double bedroom property positioned in a cul-de-sac location. This deceptively spacious home boasts accommodation extending to nearly 3000 SQ.FT, open plan living and a large rear garden.

Property Comprises


Nestled within a popular area, Greenwood Avenue is perfect for families as Lilliput School is just a road away. With its proximity to the local golf course, marinas, beaches, and desirable village locations, this property is an ideal home for both permanent residence and as a 'lock up and leave' second residence that is easy to maintain.

The bespoke high-end specification is shown throughout, from the central beam steal and oak counter-lever staircase connected the floors to the modern open-plan kitchen, dining, living space, perfect for family living. The lower ground floor is complete with a Leicht Kitchen, a large centre island, Siemens appliances, family room and access to a large sun terrace and sunny south aspect rear garden via Bi-Folding doors.

The ground floor boasts a bright and spacious entrance hall with a sunny living space overlooking the garden, also on this floor is access to the integral garage and a bathroom, complete with Duravit sanitary fittings and Saloni porcelain tiles.

The first floor boasts the impressive master bedroom suite with walk-in dressing area, leading to a shower room en-suite complete with Duravit sanitary and Saloni Porcelain tiles. Also on the floor you will find two additional bedrooms as well as a family bathroom. The second floor has two further large bedrooms, a family bathroom and a sun terrace from Bedroom 5 overlooking the rear garden.

The property has some additional features, such as: underfloor heating throughout, an air source heat pump, lightwave smart lighting system, 4kw solar panels on the roof and aluminium windows and doors.

LOCATION

Lilliput


The property is located in the heart of Lilliput and within a short level walk to local shops. Lilliput offers an array of shops including well known convenience stores, hairdressers, bike & surf shops, restaurants & cafes including an award winning patisserie. Close by is the renowned Parkstone Bay Marina offering superb boating facilities as well as the highly regarded South Deep Café set on a beautiful waterfront location with indoor and outdoor seating. The prestigious Parkstone Golf Club and the blue flag beaches of Sandbanks are just a stone's throw away. At the end of The Sandbanks Peninsula is the chain link ferry giving vehicular and pedestrian access to the many miles of National Heritage coastline of the Isle of Purbeck. Lilliput is ideally located for those needing travel connections to London and into Europe. London Waterloo can be reached in under two hours via train or road. Bournemouth International Airport offers both internal and international flights to a variety of destinations.

Back to listings Next property

This site uses some unobtrusive cookies to store information on your computer. By using our site you accept our Terms And Conditions and Privacy Policy.

×